Складской комплекс FW Group

Мы предлагаем

Аренда и продажа складских помещений в складском комплексе FW Group по адресу Санкт-Петербург, п. Шушары, Московское ш., 177 корп. 2 лит. К от собственника без комиссии

Звоните: +7 (812) 309-74-95

  • Направление

    Юг

  • Расстояние от КАД

    6.7 км

  • Шоссе

    Московское ш.

  • Расстояние от Шоссе

    0.1 км

Актуальная информация обо всех вакантных площадях предоставляется по запросу

Характеристики

  • Пожарная сигнализация

    Да

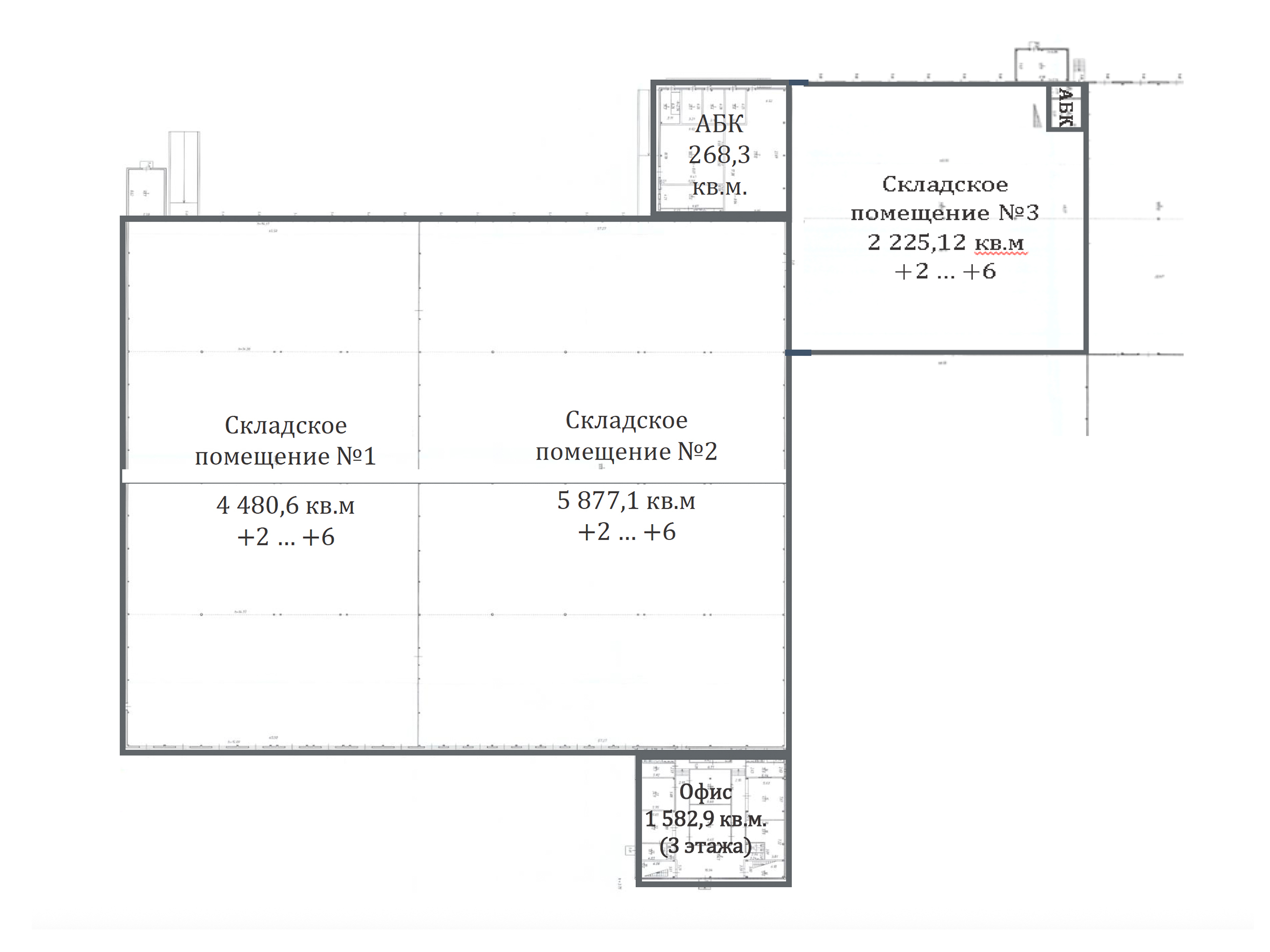
  • Общая площадь, кв.м

    60 755

  • Статус

    Построен

  • Тип склада

    Морозильный склад (-18/-24), Сухой склад, Холодильный склад (+2/+7)

  • Год постройки

    2016

  • Этажность

    1

  • Ворота

    Доки

  • Система пожаротушения

    Спринклерная

  • Тип пола

    Бетонный пол, С антипылевым покрытием

  • Вентиляция

    Приточно-вытяжная

  • Высота потолков

    11.2 м

  • Нагрузка на пол

    6 т

  • Уровень пола

    1.2 м

  • Шаг колонн

    12×24

Фотогалерея

Видеообзор

Об объекте

Расположение

Складской комплекс FW Group — это современный логистический объект класса A, расположенный в Пушкинском районе Санкт-Петербурга, в посёлке Шушары на Московском шоссе. Удачное местоположение всего в 6,7 км от КАД обеспечивает быстрый доступ к основным транспортным артериям города и региона.

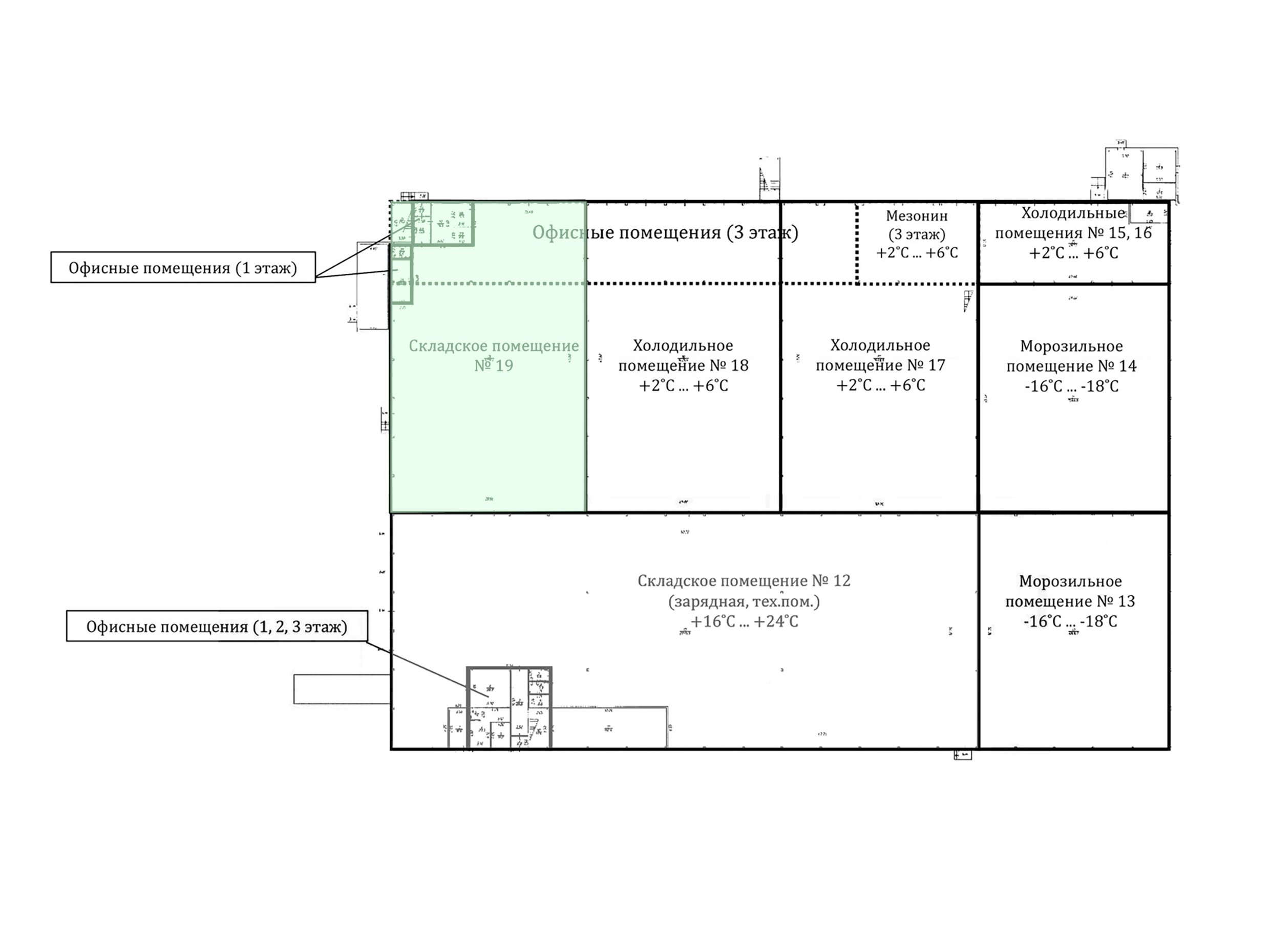
Типы складов:

  • Сухой склад: подходит для хранения товаров, не требующих температурного контроля.
  • Холодильный склад: обеспечивает температурный режим от 0 до +2 °C, идеален для хранения скоропортящихся продуктов.
  • Морозильный склад: поддерживает температуру от -18 до -24 °C, предназначен для хранения замороженных товаров.

Технические характеристики:

  • Высота потолков: 11,2 метра, что позволяет эффективно использовать вертикальное пространство.
  • Нагрузка на пол: 6 тонн на кв. м, что предоставляет возможность хранения тяжёлых грузов и использования специализированной техники.
  • Покрытие пола: бетон с антипылевым покрытием, способствующий поддержанию чистоты и долговечности.
  • Доковые ворота: обеспечивают удобную и быструю погрузку и разгрузку товаров.

Инфраструктура и удобства:

  • Современные инженерные системы, включая приточно-вытяжную вентиляцию и централизованное кондиционирование, обеспечивают комфортные условия для хранения и работы персонала.
  • Развитая инфраструктура комплекса включает в себя офисные помещения, зоны отдыха для сотрудников и охраняемую территорию.

Преимущества аренды в FW Group:

  • Стратегическое расположение с отличной транспортной доступностью
  • Разнообразие температурных режимов хранения
  • Современные технические характеристики, соответствующие стандартам класса A
  • Гибкие условия аренды и профессиональное управление объектом

Выбирая складской комплекс FW Group, вы получаете надёжного партнёра для эффективной логистики и хранения товаров в Санкт-Петербурге.

Адрес

Санкт-Петербург, п. Шушары, Московское ш., 177 корп. 2 лит. К